free website templates

3-4 筑丰陽陽-43坪


筑丰陽陽設計案基本資料
居住成員:年輕情侶
房屋坪數:43坪(權狀坪)
設計風格:時尚輕奢風
主色調::黑、白、灰
房屋狀況:新成屋
空間格局:玄關、客廳、開放廚房+書房、貓咪房、主臥、次臥、2衛浴、陽台
主要建材:人造石、金屬收邊條、鋁框門、美耐板、科技木皮、特殊塗料、黑鏡、玻璃、烤漆、石塑地板等
屋主述求:希望打造符合整體年輕帥氣質感氣息,另外養了兩隻寶貝貓咪,期待為毛小孩打造獨立專屬空間。同時因不常下廚開火,偶有朋友會來家中聚會品酒,希望擁有吧檯與開放式廚房,讓空間利用機能極大化。
莊設計師述求:打破建商原有格局,將三房其中一房隔間打開,融合規劃成開放式廚房+吧檯+書房+寵物間,全穿透視線設計,在空間機能與開放視覺感受兩者之間達到完美平衡,尤其是在節約坪數使用前提下,設計出了專屬貓咪生活空間 ,並配合整體現代簡約風格。
建商原始的規劃上窗前有畸零地,空間使用不上不下,利用臥榻設計,增加空間機能,妥善利用現有條件,為業主生活品味把關 。
整體大空間以時尚洗鍊的視覺元素主軸貫穿毫無違和。

Mobirise
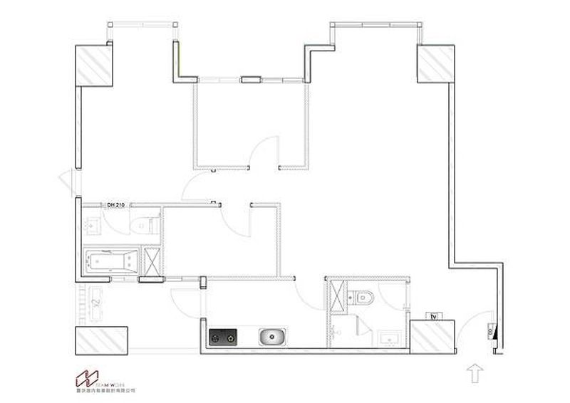
▲建設公司原始平面圖
Mobirise
▲與莊設計師討論後平面
Mobirise
▲玄關:穿鞋椅設計結合展示置物平台融入整體鞋櫃設計,
造型上落落大方
開放櫃中使用感應燈具 ,
一回到家燈光自動亮起,迎接在外辛苦一天的家人們。
Mobirise
▲玄關另一側的廁所隱藏門,利用色彩切割設計,完美修飾了原本突兀的廁所門存在感,並豐富了原本單調的牆面。
Mobirise
▲電視牆面以石紋美耐板納入金屬高光切割線條,傳遞出輕奢時尚的精品質感,有力的烘托出業主的收藏高尚的收藏品味,黑白相間大小錯落的展示櫃,搭配灰白線段的牆面造型,更是讓整面電視牆的時尚感多了幾分內斂。
Mobirise
▲造型壁燈搭配黑鏡,簡單的點綴卻大大提升了整體空間的輕奢時尚氛圍
Mobirise
▲沙發背牆運用了帶有自然紋理的藝術塗料,讓整體空間增添了幾分溫潤感
Mobirise
▲窗前的小空地設計了臥榻,並利用黑鏡修飾了遠本屋中厚重的柱子,保有時尚輕奢感的同時,也將室外的綠意引入家中,為家中增加了別具風采的休憩區域。
Mobirise
▲預留餐桌位置的彈性空間,電器高櫃滿足日常的電器需求,並設計了大小錯落的展示櫃,不論是展示或收納都更有彈性,也讓收藏品味與生活機容為一體,簡約時尚大方且具有年輕氣息。
Mobirise
▲開放式書房、廚房、貓咪房、吧檯空間:
映入眼簾的開闊空間,將原有的隔間牆打開,使原本狹小的過道空間,開闊了許多,整體空間使用也有更多彈性。
Mobirise
▲配合建商原有廚具,設計新的中島吧檯及書桌,增加了生活上的便利性與彈性,白色的中島作為原有的延伸,利用黑色檯面無形中劃分了廚房空間及書房空間,淺色木紋書桌中和了黑白色強烈對比,檯面大小足夠面對用餐、辦公等,不同的生活情境。
Mobirise
▲貓咪房用鋁框折門搭配透明玻璃,因為業主家的貓比較怕陌生人,利用玻璃門隔開貓咪與陌生人的接觸,隔絕貓砂的味道,也保有貓咪與主人間的互動性,讓貓咪有安全感,也讓主人能時時確認毛小孩的狀態。
Mobirise
▲妥善的利用垂直空間設計大小錯落的層板,讓貓咪能夠跳上跳上,了增加貓咪的活動的趣味性,我們自製貓抓繩柱,也設計了貓砂盆櫃,方便業主更換貓砂,可以說是麻雀雖小五臟俱全。
Mobirise
▲看來貓咪十分喜歡這樣的規劃,看她慵懶又愜意的樣子
Mobirise
▲主臥室:
臥室整體使用暖灰色調,造型上與客廳相呼應,既讓身心能全然放鬆又保有時尚感。
Mobirise
▲床頭吊櫃,先把投影機投影孔留下,避免日後要破壞裝潢且兼具美觀與實用機能。
Mobirise
▲衣櫃上方留有投影布幕收納盒,不使用時完美隱藏在天花板內,而黑色鋁框拉門搭配黑玻,時尚沉穩。
Mobirise
▲窗前大臥榻設計,下方可收納行李箱或換季衣物、棉被等大型物件,平時也可作為放鬆休憩的地方,將來有嬰兒時,也可做為臨時的嬰兒床。
Mobirise
▲利用柔和的切割色彩來修飾門片,將門片與整體裝潢融為一體。
Mobirise
▲次臥室
未來作為小孩房使用,淡淡的藍紫色,未來不論是男孩女孩都能使用,白色與淺木紋的書桌吊櫃,滿足了使用機能,也點綴了房間氛圍
Mobirise
▲窗旁小臥榻設計可放布偶、抱枕,滿滿一排到頂衣櫃,滿足衣物收納需求。
需要此戶報價請連接一對一客服,告知索取『筑丰陽陽』報價即可。

霆沃客變裝潢一對一諮詢:https://lin.ee/gCI9ark
夢享家優惠收費標準、裝潢須知:https://reurl.cc/MA2erL
填寫表單預約諮詢:https://reurl.cc/kZ9dGr
要快速裝潢入住準備事項:https://reurl.cc/bz2A9o
『夢享家』裝潢客變社團:https://reurl.cc/e829gW
『夢享家』裝潢設計粉專:https://reurl.cc/pmZVob
❤️下載或說明【夢享家】會員有優惠:https://lin.ee/O543dcc
辦公室地點:台北市松山區民族東路473號1樓(預約制)
☎️莊設計師:0927888356
霆沃空間設計榮獲設計大賞獎項" 2018 ID Recommended Award室內設計大賞" 今周刊所頒發「風格空間」獎項!!

Mobirise

線上諮詢

Mobirise